Описи та характеристики будинку New House

Призначення для приватного використання: постійне проживання; гостєвий будинок; будинок біля басейну; садовий будинок; будинок біля водойми; будинок у горах; додатковий будинок на ділянці; будинок для патіо; ваш варіант

Призначення для бізнесу: орендний бізнес; курортно-туристичний бізнес; готельно-туристичний бізнес; офіс та інше. 

Переваги: ​​Модульний. Транспортабельний - будівництво на підприємстві з доставкою, або будівництво на ділянці. Енергоефективний. Всесезонне використання. Пожежобезпечний. 

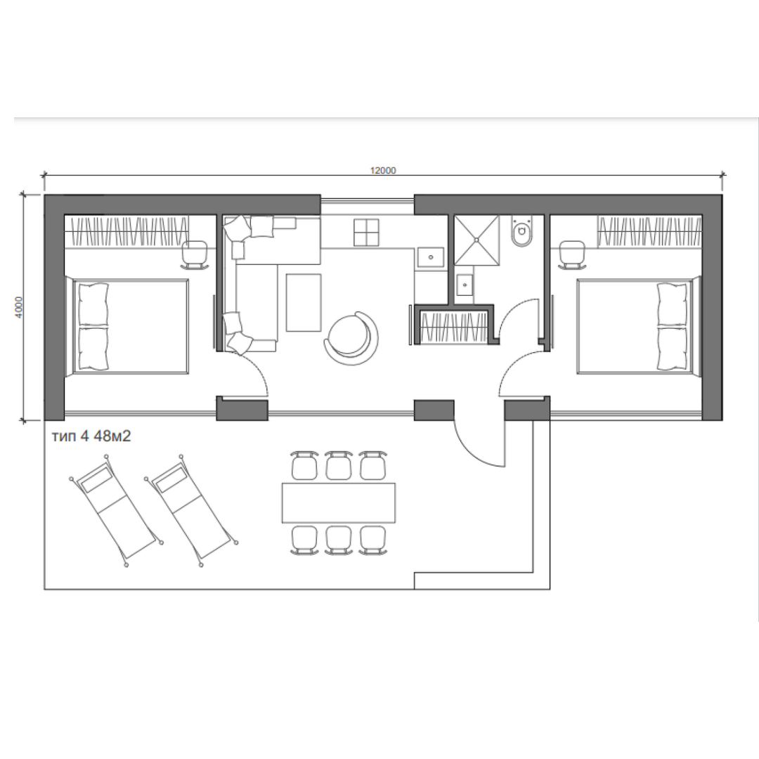
Габаритні розміри 4х12м. 49м2, h-3,3м

Планування на фото у галереї. 2 ізольовані кімнати по 12м2; кухня-вітальня 18м2; вхідна група 3м2 з вбудованим шафою для одягу та нішою для бойлера, фільтрів, електрощитка, пральні-автомат, санвузол 2,5м2 душова кабіна, інсталяція, умивальник, полотенцесушарка.

Оздоблення всередині будинку - на вибір Замовника.

Обладнання - на вибір Замовника. 

Зовнішнє оздоблення: Фасад ЦСП з фарбуванням. Водостічна система. Панорамне енергоефективне склиння. Тераса. 

 

Вартості New House, 48м2:

Standard (під оздоблення) за 1 м2 в межах 650$.

  • утеплення, подвійний ЛСТК каркас, базальтова вата 150мм;

  • обшивка чистового фасаду - ЦСП плита фарбована по RAL;

  • вода та стоки, виводи для бойлера, фільтрів, пральні автомати;

  • електрика, розведення на підрозетники, закладні під монтаж електрощитка;

  • енергоефективне склиння: 3 панорамні вікна з дверима для виходу на терасу, вікно на кухні;

  • покрівельний матеріал ПВХ мембрана, підпокрівельна аерація, утеплення 200мм мінвата;

  • у вхідній групі обшита ніша для гардеробу, ніша для бойлера та пральні автомат;

  • обшивка стін, стелі - вологостійкий гіпсокартон;

  • підлога композитна (ОСБ, пінополістирол, ЦСП) з гідроізоляцією днища, утеплення по ферм 200мм мінвата.

Ремонтні роботи по оздобленню від 140$ за м2, вказана вартість включає матеріали та роботи:

  • внутрішнє оздоблення стін - декоративна фанера або фарбовані стіни;

  • внутрішнє оздоблення сан вузла - плитка керамограніт;

  • опалення – електричні конвектори;

  • оздоблення підлоги (ламінат);

  • оздоблення стелі: натяжна, матова. 

Вартість тераси розраховується окремо і складає - 150$ за м2. Може бути довільного розміру по ширині та довжині.

Терміни: виготовляється на нашому підприємстві у термінах - 1 місяць
Доставка: на великовантажній платформі за тарифами перевізника, або самовивіз
Оплата: на умовах передоплати, поетапно. При замовлення від 10 будинків - знижка після розрахунку

Живіть у найкращих будинках! Замовляйте вже сьогодні, телефонуйте, надсилайте заявку на консультацію!

New House чекає на Вас! 

(Технічні характеристики на "будую сам")

 

Модульний будинок високої якості. Габаритні розміри 4х12м, 48м2, h3, 3м. 2 ізольовані спальні, санвузол, кухня-вітвльня, вхідна група. Панорамні вікна, тераса. Каркас ЛСТК, конструкційна сталь 350C, методика Double Wall System. Модульні нового покоління! Замовити у виробника ЛСТК та виконавця робіт з будівництва. Під ключ або під оздоблення. Швидко, якісно, ​​надійно
Площа
48м2
Поверхів
1 поверх, Вартість під оздоблення за 48м2 від
Ціна
31200$

Будувати самостійно легко! Абсолютна точність констукцій, повний комплект підвійного какасу включаючи метизну групу та інструкцію. Замовляйте, впевнені, що Ви будете насолоджуватися процесом, а ми забезпечимо консультативно! Вартість всього комплекту складає лише 170 дол за м2! Надішліть заявку або телефонуйте для конгсультації! 

Переглянути відео "Точність деталей" натисніть між дужками ( відео )

 

Технічна інформація про New House

  Технологія будівництва - Double Wall System. Технологія підвійних стін широко застосовується у всьому світі саме для досягнення максимальної енергоефективності будинків. У поєднанні з ЛСТК (Сталевими Конструкціями) та Double Wall System забезпечується надміцний конструктив будівлі, його довговічність та транспортабельність. Витривалість – 9 бвлів за шкалою Ріхтера. 

  Усі деталі виготовляються на складному роботизованому обладнанні нашого підприємства, а архітектурні, інженерні, технологічні розрахунки проводитися за допомогою спеціалізованого, сертифікованого програмного забезпечення спеціалістом високої кваліфікації та досвіду.

 New House - це найнадійніший будинок з усіх технологій будівництва, які Вам відомі, і найтехнологічніших з усіх. Він здатний переносити критичні погодні навантаження вашого регіону, тому що при проектуванні ми задаємо координати вашої ділянки, а у ПЗ є знання, наприклад, про максимальне кількість снігу за кілька століть у вашій місцевості.

 Загальна товщина стіни 350мм (35см). Підвійні стіни вашого будинку це "Золотий метод", що використовується у всіх розвинених країнах для досконалих споруд, де в якості стін можуть служити як скло, так і непрозорі огороджувальні матеріали. У технології Double Wall System 

Ваш New House має найвищу пожежну безпеку матеріалів, а розведення електрики відповідає нормам пожежної безпеки. Вся конструкція будинку це - конструкційна сталь, яка, звісно, ​​не горить, а наповнення утеплювачем базальтовою ватою - горючість НГ, тобто негорюча. Все це робить ваш IHome справжнім захисником від пожеж. 

У New House ніколи не з'явиться цвіль та грибки. По всіх площинах стін як ззовні, так і всередині сформовані теплові камери (вентзазор) для забезпечення циркуляції повітря та виведення зайвої вологості. Та матеріали які використовують для оздоблення паропроникні та гідрофобні, також екологічні. Це означає, що New House має здоровий клімат для своїх власників. 

  New House був створений з думкою про людей, які цінують себе, комфорт, вміють працювати і відпочивати. Тому фахівці нашого підприємства продумали можливість для замовників New House мати релакс біля живого вогню у сучасному дизайні камінів та альтернативне опалення. Ознайомитись про облаштування камінів можна на блогі стаття .

Площа
48м2
Поверхів
1 поверх, вартість каркасу для самостійного будівництва
Ціна
8200$

Розрахунок вартості під ключ будинку New House 48м2, 4х12м:

  1. Будинок під чистове оздоблення: встановленні вікна, вх.двері, чистовий фасад, ПВХ покрівля, пиріг підлоги та стелі з підготовкою для чистових робіт, гіспокартон на сиінах, магістралі для інверторного кондиціонера, електрика на підрозетники, інженерія (вода) по точкам та відвід - 30000 доларів;

  2. Роботи та матеріали для ремонту: ламінат, шпатлювання стін, шпалери під фарбування (поклейка та фарбування), натяжна стеля, керамограніт у ванній, монтаж сантехнічного обладнання, плінтуса, монтаж вн. дверей 8500$;

  3. Меблі і Техніка: холодильник, електроплита, духовка, витяжка, посудомийна, пральна, інверторний кондиціонер. Електрообладнання: розетки, вимикачі, автоматика, освітлення - 5500$;

  4. Сантехніка (водозмішувачі), душова кабіна, дзеркало, інсталяція та Бойлер на 80 літрів із сухим тіном, самоочищувальний фільтр для грубого очищення "Ханівел", реле тиску італійське - 2150$;

  5. Штори та ліжка - 900$;

Всього: 47050$ під ключ (до доставки)

Інші витрати:

Фундамент під цей будинок – 5900 доларів.

Тераса з композитної дошки, як на фото – 250 доларів/м2.

Виїзд бригади для підключення із командними витратами – 35000 гривень.

Доставка з розвантаженням: 152 гривень/1 км

 

Також, будинок NewHouse 48m2 можна замовити без меблювання та оснащення побутовою технікою! Будь ласка, щоб отримати розрахунок з ремонтом та сантехнічним обладнанням, зверніться за формою заявки, або телефонуйте!

Площа
48м2
Поверхів
1 поверх
Ціна
47050$
Описи та характеристики будинку New House

Призначення для приватного використання: постійне проживання; гостєвий будинок; будинок біля басейну; садовий будинок; будинок біля водойми; будинок у горах; додатковий будинок на ділянці; будинок для патіо; ваш варіант

Призначення для бізнесу: орендний бізнес; курортно-туристичний бізнес; готельно-туристичний бізнес; офіс та інше. 

Переваги: ​​Модульний. Транспортабельний - будівництво на підприємстві з доставкою, або будівництво на ділянці. Енергоефективний. Всесезонне використання. Пожежобезпечний. 

Габаритні розміри 4х12м. 49м2, h-3,3м

Планування на фото у галереї. 2 ізольовані кімнати по 12м2; кухня-вітальня 18м2; вхідна група 3м2 з вбудованим шафою для одягу та нішою для бойлера, фільтрів, електрощитка, пральні-автомат, санвузол 2,5м2 душова кабіна, інсталяція, умивальник, полотенцесушарка.

Оздоблення всередині будинку - на вибір Замовника.

Обладнання - на вибір Замовника. 

Зовнішнє оздоблення: Фасад ЦСП з фарбуванням. Водостічна система. Панорамне енергоефективне склиння. Тераса. 

 

Вартості New House, 48м2:

Standard (під оздоблення) за 1 м2 в межах 650$.

  • утеплення, подвійний ЛСТК каркас, базальтова вата 150мм;

  • обшивка чистового фасаду - ЦСП плита фарбована по RAL;

  • вода та стоки, виводи для бойлера, фільтрів, пральні автомати;

  • електрика, розведення на підрозетники, закладні під монтаж електрощитка;

  • енергоефективне склиння: 3 панорамні вікна з дверима для виходу на терасу, вікно на кухні;

  • покрівельний матеріал ПВХ мембрана, підпокрівельна аерація, утеплення 200мм мінвата;

  • у вхідній групі обшита ніша для гардеробу, ніша для бойлера та пральні автомат;

  • обшивка стін, стелі - вологостійкий гіпсокартон;

  • підлога композитна (ОСБ, пінополістирол, ЦСП) з гідроізоляцією днища, утеплення по ферм 200мм мінвата.

Ремонтні роботи по оздобленню від 140$ за м2, вказана вартість включає матеріали та роботи:

  • внутрішнє оздоблення стін - декоративна фанера або фарбовані стіни;

  • внутрішнє оздоблення сан вузла - плитка керамограніт;

  • опалення – електричні конвектори;

  • оздоблення підлоги (ламінат);

  • оздоблення стелі: натяжна, матова. 

Вартість тераси розраховується окремо і складає - 150$ за м2. Може бути довільного розміру по ширині та довжині.

Терміни: виготовляється на нашому підприємстві у термінах - 1 місяць
Доставка: на великовантажній платформі за тарифами перевізника, або самовивіз
Оплата: на умовах передоплати, поетапно. При замовлення від 10 будинків - знижка після розрахунку

Живіть у найкращих будинках! Замовляйте вже сьогодні, телефонуйте, надсилайте заявку на консультацію!

New House чекає на Вас! 

(Технічні характеристики на "будую сам")

 

Модульний будинок високої якості. Габаритні розміри 4х12м, 48м2, h3, 3м. 2 ізольовані спальні, санвузол, кухня-вітвльня, вхідна група. Панорамні вікна, тераса. Каркас ЛСТК, конструкційна сталь 350C, методика Double Wall System. Модульні нового покоління! Замовити у виробника ЛСТК та виконавця робіт з будівництва. Під ключ або під оздоблення. Швидко, якісно, ​​надійно
Площа
48м2
Поверхів
1 поверх, Вартість під оздоблення за 48м2 від
Ціна
31200$

Будувати самостійно легко! Абсолютна точність констукцій, повний комплект підвійного какасу включаючи метизну групу та інструкцію. Замовляйте, впевнені, що Ви будете насолоджуватися процесом, а ми забезпечимо консультативно! Вартість всього комплекту складає лише 170 дол за м2! Надішліть заявку або телефонуйте для конгсультації! 

Переглянути відео "Точність деталей" натисніть між дужками ( відео )

 

Технічна інформація про New House

  Технологія будівництва - Double Wall System. Технологія підвійних стін широко застосовується у всьому світі саме для досягнення максимальної енергоефективності будинків. У поєднанні з ЛСТК (Сталевими Конструкціями) та Double Wall System забезпечується надміцний конструктив будівлі, його довговічність та транспортабельність. Витривалість – 9 бвлів за шкалою Ріхтера. 

  Усі деталі виготовляються на складному роботизованому обладнанні нашого підприємства, а архітектурні, інженерні, технологічні розрахунки проводитися за допомогою спеціалізованого, сертифікованого програмного забезпечення спеціалістом високої кваліфікації та досвіду.

 New House - це найнадійніший будинок з усіх технологій будівництва, які Вам відомі, і найтехнологічніших з усіх. Він здатний переносити критичні погодні навантаження вашого регіону, тому що при проектуванні ми задаємо координати вашої ділянки, а у ПЗ є знання, наприклад, про максимальне кількість снігу за кілька століть у вашій місцевості.

 Загальна товщина стіни 350мм (35см). Підвійні стіни вашого будинку це "Золотий метод", що використовується у всіх розвинених країнах для досконалих споруд, де в якості стін можуть служити як скло, так і непрозорі огороджувальні матеріали. У технології Double Wall System 

Ваш New House має найвищу пожежну безпеку матеріалів, а розведення електрики відповідає нормам пожежної безпеки. Вся конструкція будинку це - конструкційна сталь, яка, звісно, ​​не горить, а наповнення утеплювачем базальтовою ватою - горючість НГ, тобто негорюча. Все це робить ваш IHome справжнім захисником від пожеж. 

У New House ніколи не з'явиться цвіль та грибки. По всіх площинах стін як ззовні, так і всередині сформовані теплові камери (вентзазор) для забезпечення циркуляції повітря та виведення зайвої вологості. Та матеріали які використовують для оздоблення паропроникні та гідрофобні, також екологічні. Це означає, що New House має здоровий клімат для своїх власників. 

  New House був створений з думкою про людей, які цінують себе, комфорт, вміють працювати і відпочивати. Тому фахівці нашого підприємства продумали можливість для замовників New House мати релакс біля живого вогню у сучасному дизайні камінів та альтернативне опалення. Ознайомитись про облаштування камінів можна на блогі стаття .

Площа
48м2
Поверхів
1 поверх, вартість каркасу для самостійного будівництва
Ціна
8200$

Розрахунок вартості під ключ будинку New House 48м2, 4х12м:

  1. Будинок під чистове оздоблення: встановленні вікна, вх.двері, чистовий фасад, ПВХ покрівля, пиріг підлоги та стелі з підготовкою для чистових робіт, гіспокартон на сиінах, магістралі для інверторного кондиціонера, електрика на підрозетники, інженерія (вода) по точкам та відвід - 30000 доларів;

  2. Роботи та матеріали для ремонту: ламінат, шпатлювання стін, шпалери під фарбування (поклейка та фарбування), натяжна стеля, керамограніт у ванній, монтаж сантехнічного обладнання, плінтуса, монтаж вн. дверей 8500$;

  3. Меблі і Техніка: холодильник, електроплита, духовка, витяжка, посудомийна, пральна, інверторний кондиціонер. Електрообладнання: розетки, вимикачі, автоматика, освітлення - 5500$;

  4. Сантехніка (водозмішувачі), душова кабіна, дзеркало, інсталяція та Бойлер на 80 літрів із сухим тіном, самоочищувальний фільтр для грубого очищення "Ханівел", реле тиску італійське - 2150$;

  5. Штори та ліжка - 900$;

Всього: 47050$ під ключ (до доставки)

Інші витрати:

Фундамент під цей будинок – 5900 доларів.

Тераса з композитної дошки, як на фото – 250 доларів/м2.

Виїзд бригади для підключення із командними витратами – 35000 гривень.

Доставка з розвантаженням: 152 гривень/1 км

 

Також, будинок NewHouse 48m2 можна замовити без меблювання та оснащення побутовою технікою! Будь ласка, щоб отримати розрахунок з ремонтом та сантехнічним обладнанням, зверніться за формою заявки, або телефонуйте!

Площа
48м2
Поверхів
1 поверх
Ціна
47050$